… darf’s etwas mehr sein? Mehr Platz? Unsere Apartments!

Da schau her, da hat ja die ganze Familie Platz! Unsere richtig feinen Apartments bieten nicht nur viel Raum, sondern auch alles, was das umweltbewusste Urlauberherz begehrt. Viel heimisches Holz etwa und praktisch ausgestattete Wohnküchen und Bäder. Und einen Balkon zum Aussicht-Genießen gibt’s obendrauf!

… darf’s etwas mehr sein? Ferienwohnung LÄRCHE

Zimmerplan

Unserer Ferienwohnung Lärche ist 63m² groß und für 4–6 Personen geeignet. Die Wohnung befindet sich im 2. Stock und verfügt über zwei getrennte Schlafzimmer sowie eine Schlafcouch für 2 Personen im Wohnzimmer.

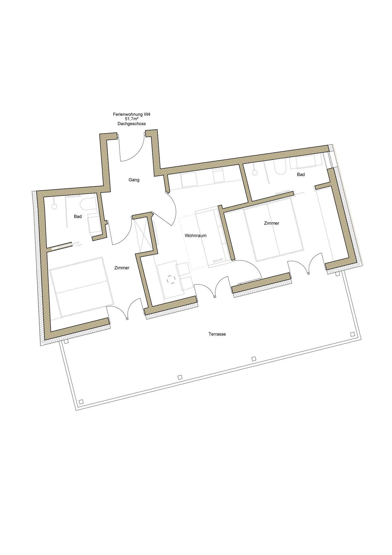
… darf’s etwas mehr sein? Ferienwohnung KIEFER

Zimmerplan

Unserer Ferienwohnung Kiefer ist 40m² groß und für 2–4 Personen geeignet. Die Wohnung befindet sich im 2. Stock und verfügt über ein Schlafzimmer sowie eine Schlafcouch für 2 Personen im Wohnzimmer.

… darf’s etwas mehr sein? Ferienwohnung FICHTE

Zimmerplan

Unserer Ferienwohnung Fichte ist 50m² groß und für 4–6 Personen geeignet. Die Wohnung befindet sich im 3. Stock und verfügt über zwei getrennte Schlafzimmer sowie eine Schlafcouch für 2 Personen im Wohnzimmer.

… darf’s etwas mehr sein? Ferienwohnung ZIRBE

Zimmerplan

Unserer Ferienwohnung Zirbe ist 35m² groß und für 2–4 Personen geeignet. Die Wohnung befindet sich im 3. Stock und verfügt über ein Schlafzimmer sowie eine Schlafcouch für 2 Personen im Wohnzimmer.

… darauf freut ihr euch die ganze Nacht Frühstücksfreuden
Für den vollen Bauch
… alles, was ihr zum Glücklichsein braucht Inklusivleistungen
Für den freien Kopf

Einmal VERGÖNNUNG, bitte!

… ihr habt’s verdient!

5=4

25.03.2026 - 04.04.2026

Mediterraner Frühling 5=4

ab 328,00€ p.P. inklusive Frühstück
Mehr erfahren

-10%

11.04.2026 - 09.05.2026

Frühlingsbonus -10%

Ab 5 Nächte- ab 414€ p.P. inklusive Frühstück
Mehr erfahren

4=3

27.11.2026 - 05.12.2026
14.12.2026 - 21.12.2026

Winter Spezial 4=3

ab 291,00€ p.P. inklusive Frühstück
Mehr erfahren